Eksponeret aluminiumsgardinvægsystem
Beskrivelse
Tekniske parametre
Eksponeret aluminiumsgardinvægsystem
Om udsatte aluminiumsgardinvægsystem
EnEksponeret aluminiumsgardinvægsystemer en moderne, letvægtsfacadeopløsning, der ofte bruges i kommercielle og høje bygninger . Det består af aluminiumsrammer og paneler, der er synligt fremtrædende, hvilket skaber en slank, strukturel æstetisk . Her er en sammenbrud af dens nøglefunktioner, fordel og anvendelser:
Nøglefunktioner:
Synlige Mullions & Transsoms
De aluminiumsrammermedlemmer (mullions og transomer) udsættes for det ydre, hvilket giver et gitterlignende udseende .
Fås i forskellige finish (anodiseret, pulverovertrukket, woodgrain osv. .) .
Strukturel ruder
Glas- eller uigennemsigtige paneler er fastgjort ved hjælp af trykplader og hætter, hvilket giver et rent men industrielt look .
Kan inkorporere dobbeltglaseret eller lamineret glas til termisk og akustisk ydeevne .
Modulært design
Prefabrikerede enheder giver mulighed for hurtigere installation .
Kan tilpasses i forskellige former (buet, vinklet eller flad) .
Vejrmodstand
Højtydende pakninger og tætningsmidler forhindrer vand og luftinfiltration .
Holdbar mod UV -stråler, korrosion og ekstrem vejr .
Fordele:
✔ Æstetisk appel- giver en moderne, arkitektonisk udsagn med synlig metalramme .
✔ Holdbarhed- Aluminium er let, men alligevel stærk, modstandsdygtig over for rust og deformation .
✔ Fleksibilitet- Tilpasningsdygtig til komplekse design, inklusive skrånende eller buede facader .
✔ Energieffektivitet- Kan integrere termiske pauser og isoleret glas for bedre ydelse .
✔ Lav vedligeholdelse- Kræver minimal vedligeholdelse sammenlignet med andre beklædningsmaterialer .
Ansøgninger:
Office Towers & Corporate Buildings
Indkøbscentre og lufthavne
Hoteller og bolighøjhuse
Institutionelle bygninger (universiteter, hospitaler)
Sammenligning med andre systemer:
| Funktion | Udsat system | Skjult ramme (SSG/strukturel ruder) |
|---|---|---|
| Sigtbarhed | Mullions synlige | Sømfrit, rammeløst look |
| Koste | Moderat | Højere (på grund af silikonebinding) |
| Installation | Lettere adgang til reparationer | Mere kompliceret |
| Æstetisk | Industriel/moderne | Ultra-slank, minimalistisk |
Installationsovervejelser:
Kræver præcis tilpasning til vandtæt ydeevne .
Termisk udvidelse af aluminium skal redegøres for .
FireProofing-foranstaltninger kan være nødvendige i højhuse-applikationer .
Guangya Project Case: Fælles-kontrolbygning til Hongkong-Zhuhai-Macao Bridge
Produkt: Tag og gardinvæg
Område: 10000m²

Produktspecifikation
| Brandnavn | Guangya | Overfladebehandling | Anodiseret, pulverfluorcarbonbelægning, elektroforese osv. ... |
| Type | Gardinvægsystem | Farve | Tilpasset |
| Modelnummer | Et serie udsat for gardinvægsystem | Længde | Tilpasset |
| Oprindelsessted | Lavet i Kina | Aluminiumstykkelse | Hovedprofilvægt tykkelse 3,0 mm |
| Materiale | Aluminiumslegering og glas | Glas | 6/8/10 / 12mm, enkelt tempereret glas / lamineret glas / dobbeltvindue hærdet glas / lavt glas |
| Temperament | T3 - T8 | Certifikat | ISO9001 CQC Saiglobal AS2047 |
| Anvendelse | Velegnet til forskellige bygningstyper | Tilpasning | Logo / emballage / grafik |
| Form | Tilpasset | Emballageoplysninger | EPE -film / varme Kontrakteret plastfilm / træpakning / metalpalle eller afhænger af klienters specielle krav . |
| Legering eller ej | Ja | Leveringstid | 20 - 30 dage |
| Behandlingstjeneste | Stansning, skæring, bøjning, decoiling, svejsning | Forsyningsevne |
200000㎡/år |
Funktion og anvendelse
Guangya En serie eksponeret aluminiumsgardinvægsystem bruger 6 mm +12 a +6 mm isolerende glas, den vigtigste profilvægt er 3 . 0 mm . glasets gardinvægsystem består af metalkomponenter og glaspaneler, der fastgøres til hovedstrukturen, men undertager ikke hovedstrukturen for hovedstrukturen.
Udover dekorationsfunktion fungerer det også forskellige funktioner som vind mod, blinkende, varmepreservation, varmeisolering, akustisk isolering, luftpermeabilitet .
Generelt kombinerer den udsatte ramme aluminiumsgardinvæg funktionalitet, æstetik og ydeevne for at skabe en visuelt tiltalende og strukturelt lydbygningskonvolut .

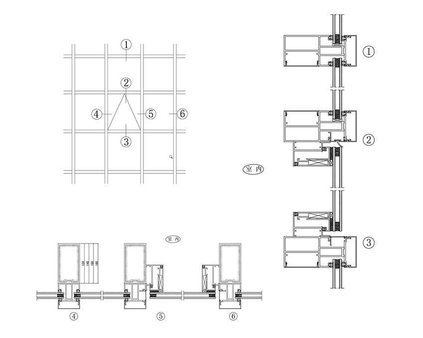
Strukturtegning
Et serie udsat for gardinvægsystem

Fremstillingsbehandling

Emballage og forsendelse

FAQ
Spørgsmål: Hvad er dit vigtigste marked?
A: Vores vigtigste markeder er Australien, Mellemøsten, Sydasien og Sydamerika .
Spørgsmål: Hvor mange kvadratmeter af din fabrik?
A: Mere end 40, 000 ㎡ .
Spørgsmål: Hvor mange arbejdere på din fabrik?
A: 400+ Teknikere og arbejdere .
Spørgsmål: Trader du selskab eller producent?
A: Vi er professionel producent, der er specialiseret i aluminiumsgardinvæg, vindue og væg ., og vi handler direkte med vores klienter .
Spørgsmål: Har du QC -afdeling?
A: Ja .
Spørgsmål: Kan du lave vores egen emballage?
A: Ja, du leverer bare pakkedesignet, og vi vil producere det, du vil have . Vi har også den professionelle designer kan hjælpe dig med at lave emballagedesign .
Spørgsmål: Hvor langt er din fabrik fra lufthavnen og togstationen?
A: Fra lufthavnen ca. 50 minutter i bil og fra togstationen ca. 30 minutter .
Spørgsmål: Har du en eksportlicens?
A: Ja .
Spørgsmål: Leverer du prøve? Er det gratis?
A: Vi vil give prøven indsamling, og prøven er ikke gratis .
Spørgsmål: Kan du arrangere forsendelse til kunden?
A: Ja, vi arbejder med de mest pålidelige rederier i verden, såsom OOCL, MEARSK, MSC, osv. .
Populære tags: Eksponerede aluminiumsgardinvægsystem, Kina eksponerede aluminiumsgardinvægsystemproducenter, fabrik
Et par af
NejNæste
Stor gardinvægSend forespørgsel








